INTERIOR DESIGN DOCUMENTATION
Buckminster Green is a design-build remodeler. The word design comes first for a reason. We start with design. Read on to learn more about the deliverables our team will produce to make sure your project goes smoothly.
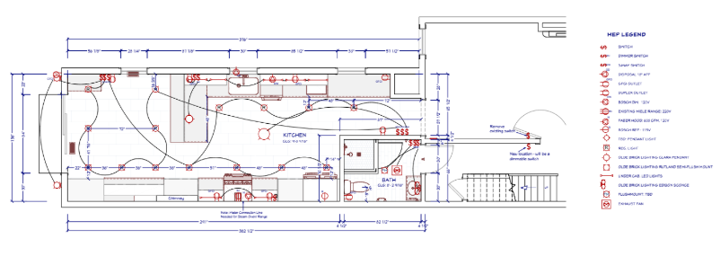
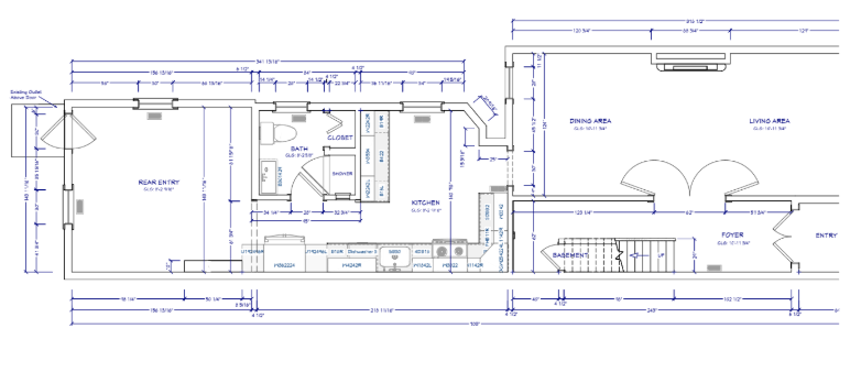
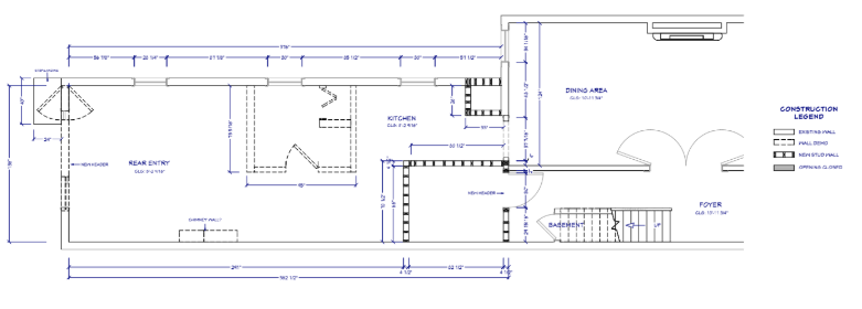
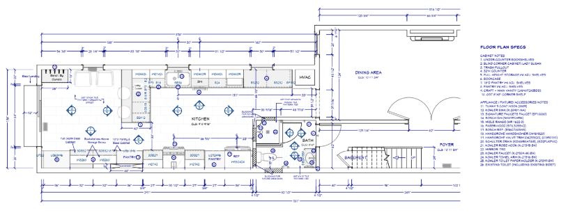
No matter the size or scope of the project, you can expect "existing" and "proposed" floorplans and elevations of your new space. There will be a mechanical plan. See examples of our designer's work below.
Floor plans, mechanical plan and elevations
Renderings
The plans above are detailed so our team builds just what the design team intended but they can be challenging for some of our clients to make sense of. This is where renderings come in. Our standard design package includes some simple renderings to help you get a 3D sense of the space. For an extra fee we can also create photo-realistic renderings.
Selections
There are many decisions to make before your remodel starts. We help you visualize how different elements go together on digital design boards. Once you finalize the selections, our team keeps track of everything on selection sheets. We even specify the right bulbs for the light fixtures so the tone is consistent.
Interior Decorating
Want to walk into your new space after the remodel and see new art, furniture, rugs and window treatments? Ask about upgrading your design package to include interior decorating. Your designer will create digital design boards and procure samples for all of the above.

